喰田house
一覧へ戻る

喰田house

福原地区の喰田という場所にある住宅です。
世帯部屋1軒と単身部屋が2軒入っています。
外観も内観もおしゃれなこの住宅は上勝町の杉が使われており、世帯部屋にはロフトもついています。
広々とした部屋に近くの川の音が心地よいです。

世帯&単身用

住宅基本情報

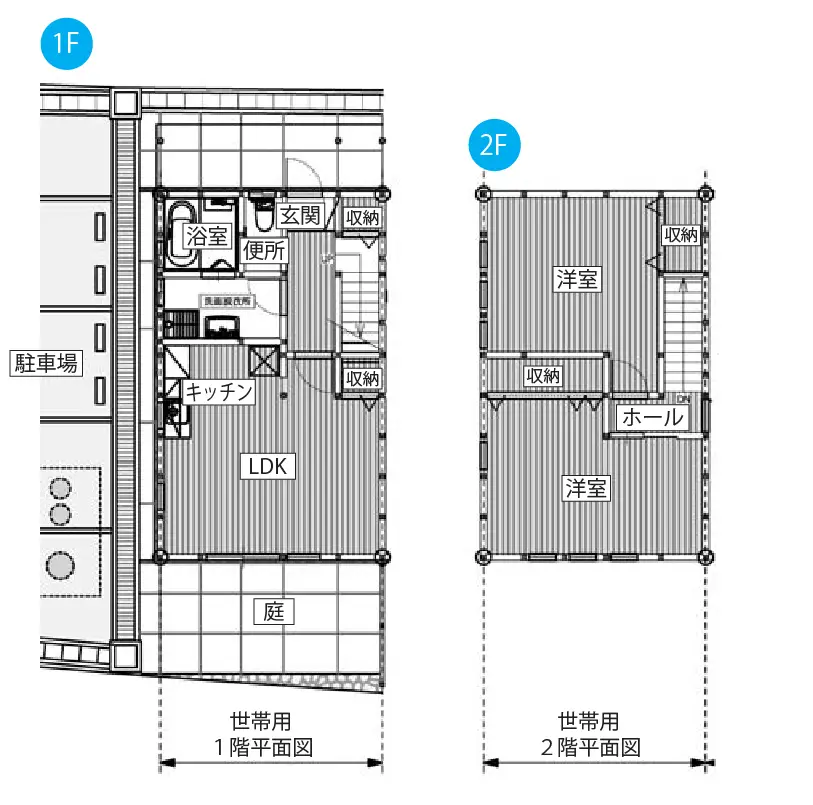
間取り1

世帯部屋

構造:木造
階数:2階
間取り:2LDK
家賃(公益費含む):40,000円
駐車場:2台付き
住所:上勝町大字福原字栩ヶ谷77番地1
設備:デジタルTV、インターネット完備
間取り2

単身部屋

構造:木造
階数:1階
間取り:1K ロフト付き
家賃(公益費含む):17,000円
駐車場:1台付き
住所:上勝町大字福原字栩ヶ谷77番地1
設備:デジタルTV、インターネット完備
お問い合わせ お試し暮らし体験申込